标识导视
实验室环境建设是一门多学科的综合性技术工程,尤其在电气系统的改造方面,需要对目标环境空间及所涉猎的专业学术知识有着深入的了解和认知,方能给出最优化的改造方案。本次华能西安热工院睿渥研发实验室的电气改造工程,正是由项目组电气工程团队严格依据《供配电系统设计规范》等实验室电气系统要求,打造最为适配的实验室供电方案。
勘察电路 寻根求源
实验室电气改造,若想给出最优的解决方案,那首先必须对原有电路所存在的问题有着清晰的认知,究其根本再对症下药,才能有效解决问题。而通常实验室电气存在的问题大致有以下几点:第一,总体布线不符合要求;第二,供电系统供电方式的选择存在问题;第三,实验设备的供电电源线存在问题;第四,供电系统没有安装接地保护装置;第五,静电防止没有做好。基于这几点,项目电气工程团队对实验室以及实验室所在的整体楼栋的线路进行了彻底排查,经过多次调试分析,发现了该楼一层及实验室办公室所在楼层电路总体布线均存在不合理之处,由此项目团队也明晰了下一步工作的针对性目标。
*项目现场勘察实拍图
出具方案 对症解决
实验室内的设备往往会随着检测目标的改变、新技术的不断更新而变化,因此配电系统除具有高可靠性外,还应具有较大的灵活性和扩展性,以保证实验室后续稳定正常运行。因此本次施工改造方案的制定,除对原有问题的解决外,项目团队对实验室电气整体布局、供电方式及使用材料等多个要素谨慎考虑,争取最大化的保证新线路的灵活性及扩展性,同时,需高度重视抗电磁干扰和谐波抑制问题,从而保证实验室日后的运作顺畅无阻。




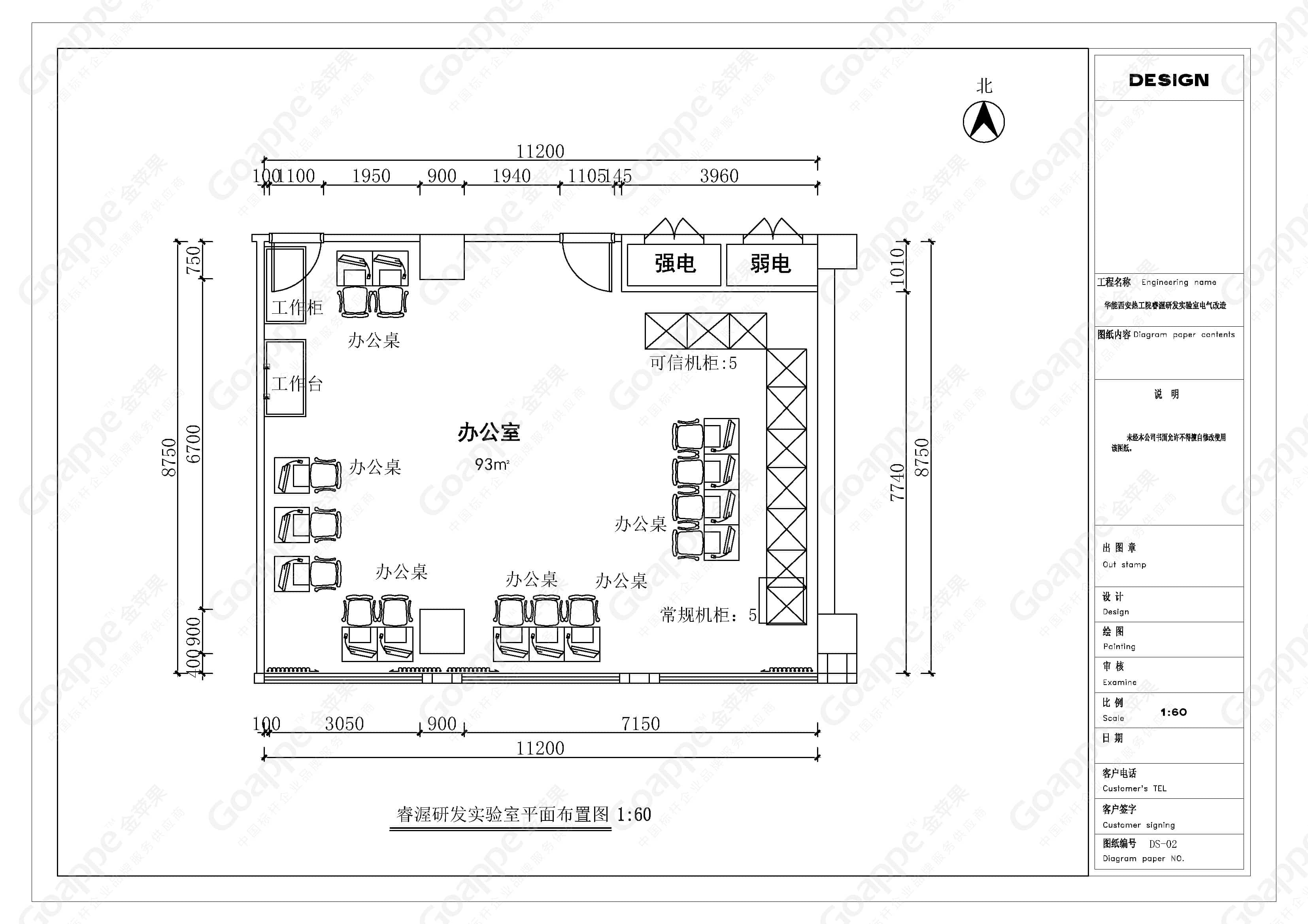
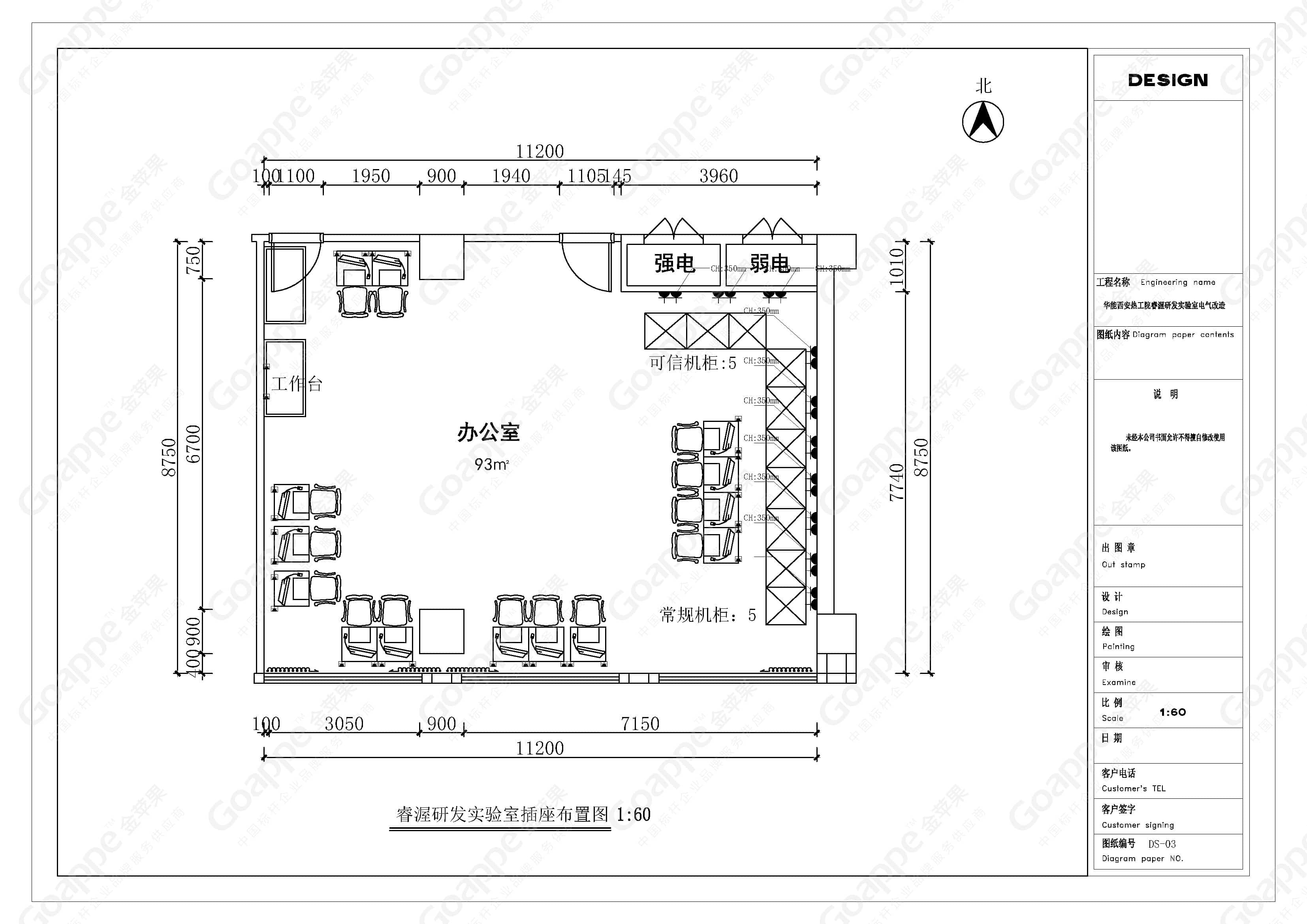
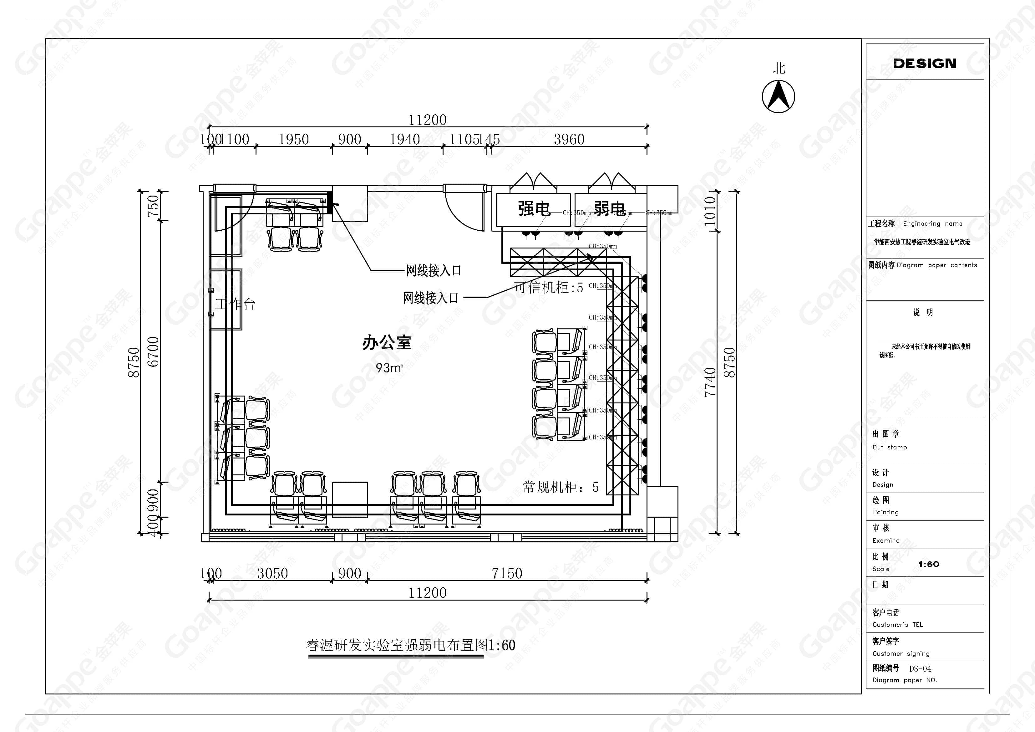
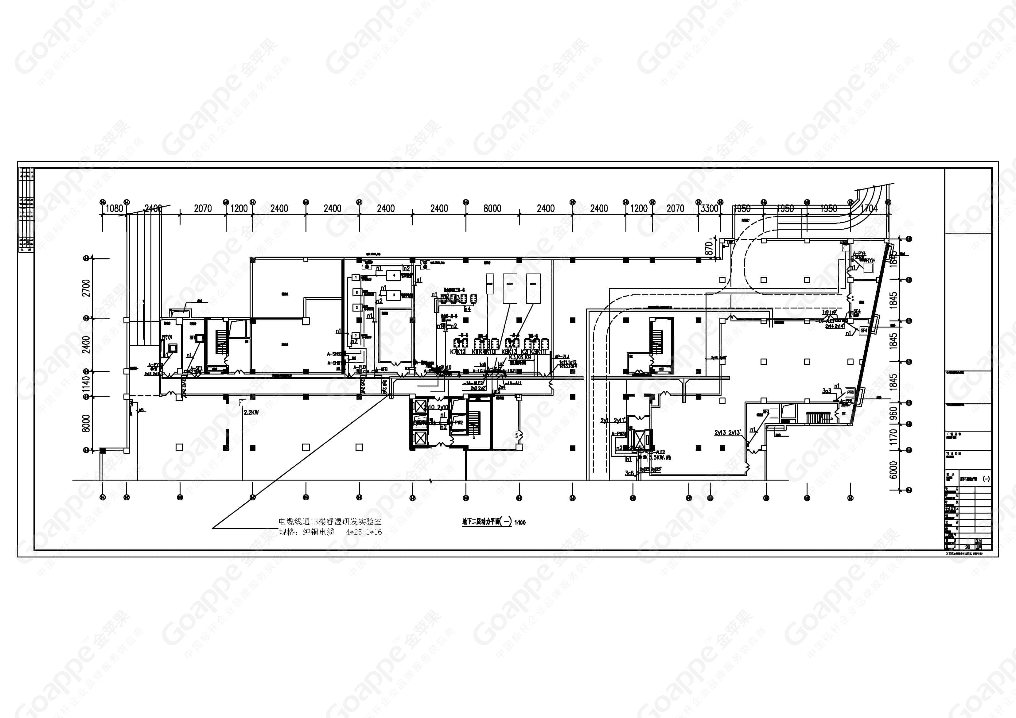
*项目电气改造施工图纸
入场实施 布线完成
电气改造工程在施工作业中,首要问题必然是“安全”,包括电源的开关情况,工人的安全防护措施的佩戴、施工材料的运送等等,都需特别关注,其他,环保、效率、效益、人性化等要素也需重视。项目施工团队在以上原则的要求之下,与客户方同步沟通作业,依据后期需求及改造方案,高效率高质量完成整体改造工程,让整个实验楼的电路脉搏顺利跳动!


